resim
EmlakArsaSatılık

TURYAP YAMANDAN Avşar'da acil satılık imarlı arsa

Facebook X Mail


TURYAP YAMAN TURGUTLU Hesap Tarihi 20 Kasım 2025

1.900.000,00

Fiyat 1.900.000,00
İlan No 1129277
İlan Tarihi 27 Kasım 2025
İmar Durumu Konut
327
Ada No 2661
Parsel No 10
Pafta No Belirtilmemiş
Kaks (Emsal) Belirtilmemiş
Gabari Belirtilmemiş
Tapu Durumu Belirtilmemiş
Kat Karşılığı Belirtilmemiş
Krediye Uygunluk Bilinmiyor
Kimden Emlak Ofisinden

TURYAP YAMAN TURGUTLU

image
Murat Şeker

Açıklama




Konum:

** Manisa - Turgutlu – Avşar Mahallesinde,

** Konut imarının hızla geliştiği bölgede,

** İzmir-Ankara asfaltına yakın

**Gelişimin merkezinde değerli bir lokasyondadır.

Arsa Özellikleri:
** 327.30 m²
** 3 kat konut imarlı
** Hem yatırıma hem inşaata hazır
** Altyapıya yakın, bölgede yüksek talep gören tipte daire projelerine uygun

İnşaat Alternatifleri:
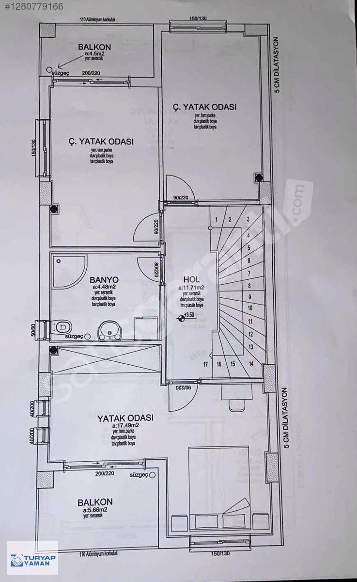
** Her biri 162 m² 3+1 geniş daireler
Veya resimlerde gördüğünüz hali hazırda bu arazi için çizilmiş villa projemiz konut olarak örneklendirilebilir 


Not:
Arsamız az pazarlıklıdır.
İster yatırım yapın, ister bu eşsiz bölgede dairelerinizi kısa sürede satışa çıkararak kazanca geçin.

**Detaylı bilgi ve yerinde keşif için bizimle iletişime geçin!
**TURYAP Turgutlu Temsilciliği



Altyapı

Arıtma

Doğalgaz

Elektrik

Kanalizasyon

Sanayi Elektriği

Sondaj & Kuyu

Su

Telefon

Yolu Açılmamış

Yolu Açılmış

Yolu Yok

Zemin Etüdü

Konum

Ana Yola Yakın

Denize Sıfır

Denize Yakın

Havaalanına Yakın

Toplu Ulaşıma Yakın

Manzara

Boğaz

Deniz

Doğa

Göl

Şehir

Genel Özellikler

İfrazlı

Köşe Parsel

Parselli

Projeli

Taşınmaz Ticari Yetki Belgesi

Taşınmaz Ticareti Yetki Belge Bilgileri sisteme girilmemiştir.

satisgaranti.com'da yer alan kullanıcıların oluşturduğu tüm içerik, görüş ve bilgilerin doğruluğu, eksiksiz ve değişmez olduğu, yayınlanması ile ilgili yasal yükümlülükler içeriği oluşturan kullanıcıya aittir. Bu içeriğin, görüş ve bilgilerin yanlışlık, eksiklik veya yasalarla düzenlenmiş kurallara aykırılığından satisgaranti.com hiçbir şekilde sorumlu değildir. Sorularınız için ilan sahibi ile irtibata geçebilirsiniz.

CopyrightSG GARANTİ BİLİŞİM © 2019 - 2025