resim
EmlakArsaSatılık

Şile Teke Köyünde Doğayla İç İçe Huzurlu Bir Yaşam Alanı

Facebook X Mail


TURYAP ŞİLE IŞIKLAR TEMSİLCİLİĞİ Hesap Tarihi 30 Ekim 2024

5.950.000,00

Fiyat 5.950.000,00
İlan No 1127421
İlan Tarihi 25 Kasım 2025
İmar Durumu Konut
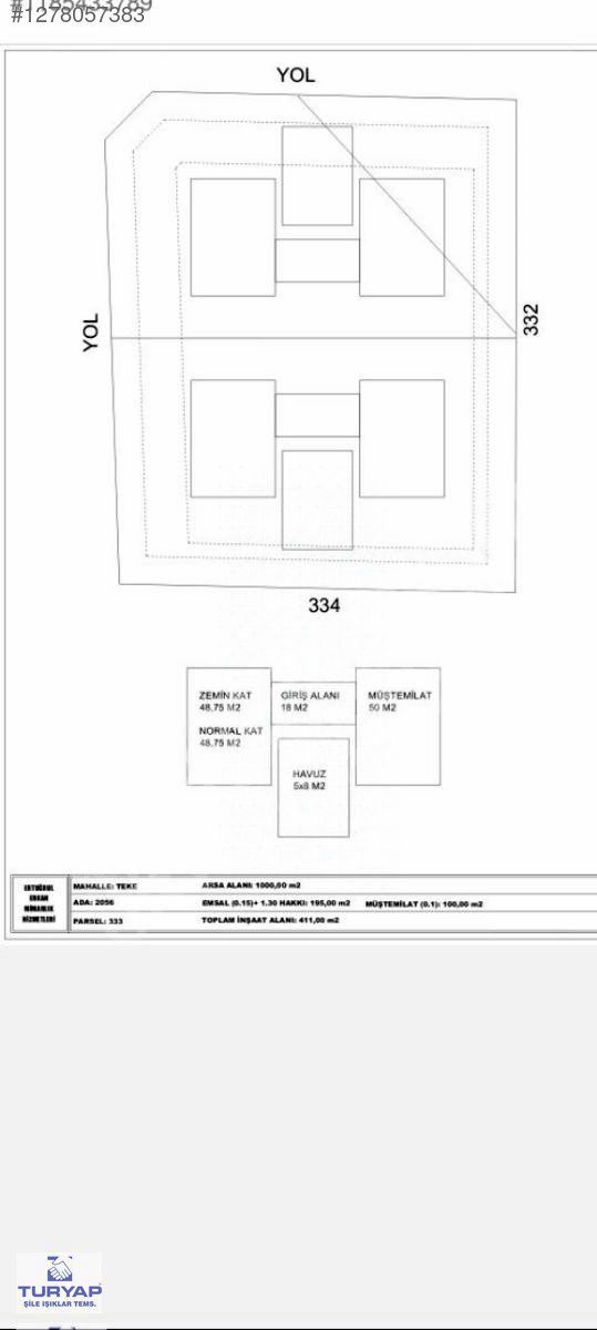
1000
Ada No 2056
Parsel No 333
Pafta No Belirtilmemiş
Kaks (Emsal) 0.15
Gabari 6.50
Tapu Durumu Belirtilmemiş
Kat Karşılığı Belirtilmemiş
Krediye Uygunluk Bilinmiyor
Kimden Emlak Ofisinden

Açıklama

İstanbul Şile’nin en büyük ve en güzel köylerinden Teke Köyü’nde, doğanın kalbinde sessiz, sakin, kuş sesleri eşliğinde huzurlu bir yaşam sizi bekliyor.

Arsa Özellikleri:

Toplam Alan: 1000 m²

İmar Durumu: %15 konut imarı + %10 müştemilat hakkı

Emsal Hesabı: 1000 × 0,15 × 1,30 = 195 m² tek villa yapılabilir.

Ayrıca 100 m² müştemilat hakkı da bulunmaktadır.

Dilerseniz 100’er m² 50’şer m² müştemilatlarla iki villa olarak da değerlendirebilirsiniz.

Konum ve Yaşam:

Şile merkeze kolay ulaşım mesafesindedir.

Yaz kış yaşamaya uygundur.

Doğayla iç içe, sessiz ve huzurlu bir çevreye sahiptir.

Ek Hizmet:

Tarafımızdan mimari proje ve uygulama desteği alabilirsiniz.

Doğanın içinde, şehrin stresinden uzak ama İstanbul’a bir adım mesafede yeni bir hayat sizi bekliyor.

İletişim:
Emre Bağlar
Turyap Şile Işıklar Temsilciliği
0546 274 34 34

Altyapı

Arıtma

Doğalgaz

Elektrik

Kanalizasyon

Sanayi Elektriği

Sondaj & Kuyu

Su

Telefon

Yolu Açılmamış

Yolu Açılmış

Yolu Yok

Zemin Etüdü

Konum

Ana Yola Yakın

Denize Sıfır

Denize Yakın

Havaalanına Yakın

Toplu Ulaşıma Yakın

Manzara

Boğaz

Deniz

Doğa

Göl

Şehir

Genel Özellikler

İfrazlı

Köşe Parsel

Parselli

Projeli

Taşınmaz Ticari Yetki Belgesi

Taşınmaz Ticareti Yetki Belge Bilgileri sisteme girilmemiştir.

satisgaranti.com'da yer alan kullanıcıların oluşturduğu tüm içerik, görüş ve bilgilerin doğruluğu, eksiksiz ve değişmez olduğu, yayınlanması ile ilgili yasal yükümlülükler içeriği oluşturan kullanıcıya aittir. Bu içeriğin, görüş ve bilgilerin yanlışlık, eksiklik veya yasalarla düzenlenmiş kurallara aykırılığından satisgaranti.com hiçbir şekilde sorumlu değildir. Sorularınız için ilan sahibi ile irtibata geçebilirsiniz.

CopyrightSG GARANTİ BİLİŞİM © 2019 - 2025