| Fiyat | 6.950.000,00 ₺ |
|---|---|
| İlan No | 1110350 |
| İlan Tarihi | 03 Ekim 2025 |
| İmar Durumu | Konut |
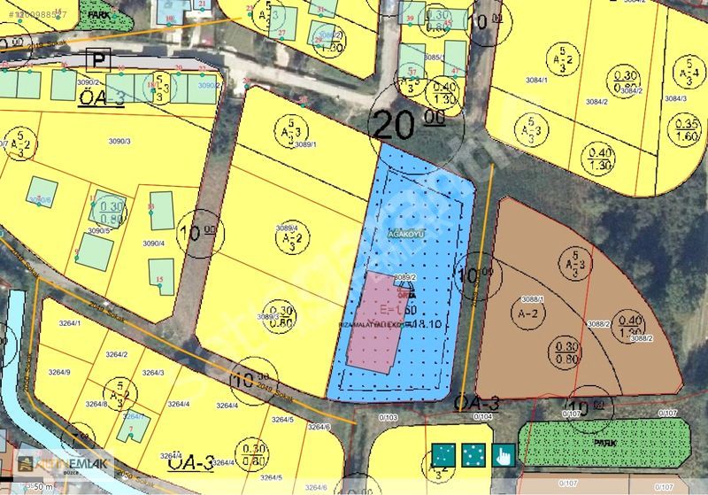
| m² | 2096 |
| Ada No | 3089 |
| Parsel No | 4 |
| Pafta No | Belirtilmemiş |
| Kaks (Emsal) | 0.80 |
| Gabari | Belirtilmemiş |
| Tapu Durumu | Belirtilmemiş |
| Kat Karşılığı | Belirtilmemiş |
| Krediye Uygunluk | Evet |
| Kimden | Emlak Ofisinden |

SATILIK 2.096m² ARSA
2 KAT KONUT İMARLI
TABAN İNŞAAT 630 m² YAPIMINA UYGUN
DÜZCE/MERKEZ
AĞAMAHALLESİ
EMNİYET MÜDÜRLÜĞÜNE 950 Metre
ATATÜRK DEVLET HASTANESİNE 1 Kilometre
DÜZCE VALİLİĞİ 1,7 Kilometre
ŞEHİR MERKEZİ 1,6 Kilometre Mesafede...
FIRSAT ARSA
MÜSTAKİL TAPULU
ELEKTRİK-SU-DOĞALGAZ-ALT YAPI MEVCU
20 Metrelik Çevre Yolunun 1 Parsel Arkası
DETAYLI BİLGİ ALMAK İSTERSENİZ BİZE ULAŞABİLİRSİNİZ
PROFESYONEL VE GÜLER YÜZLÜ EKİBİMİZ İLE
HAFTANIN 7 GÜNÜ HİZMET VERMEKTEYİZ.
ALTIN EMLAK DÜZCE TEMSİLCİLİĞİ
YETKİ BELGESİ NO: 8100043
İLETİŞİM : 0380 523 0 523 - 0542 610 81 81
CopyrightSG GARANTİ BİLİŞİM © 2019 - 2025